Lokálny rekuperátor Ventika 100 SOLO+ s diaľkovým ovládaním
Kód: 504699877171



Podrobný popis
✅ Hlavné výhody a funkcie
-
Vysoká účinnosť rekuperácie: Keramický výmenník tepla dosahuje účinnosť spätného získavania tepla až 85 % – 88 %.
-
Inteligentná kontrola vlhkosti: Integrovaný senzor vlhkosti (hygrostat) umožňuje automatické vetranie pri prekročení nastavenej úrovne (rozsah 60 – 90 %).
-
Jednoduchá inštalácia (Plug & Play): Jednotka sa pripája priamo do 230 V zásuvky a nevyžaduje zložité nastavovanie.
-
Tichá a úsporná prevádzka: Vďaka DC motoru má zariadenie nízku spotrebu (len pár wattov) a hlučnosť od 27 dB(A).
-
Komfortné ovládanie: Súčasťou balenia je diaľkový ovládač pre prepínanie rýchlostí, aktiváciu nočného režimu alebo senzora vlhkosti.
✨ Pracovné cykly (60 sekúnd)
Zariadenie funguje v dvoch fázach, ktoré sa automaticky striedajú každú minútu:
-
Fáza (Odvod): Teplý vzduch z miestnosti prúdi cez keramický výmenník, ktorý sa nahrieva.
-
Fáza (Prívod): Smer ventilátora sa otočí a čerstvý vzduch z vonku sa pri prechode nahriatym výmenníkom ohrieva.
📊 Technické parametre
-
Prietok vzduchu: Až 46 m³/h
-
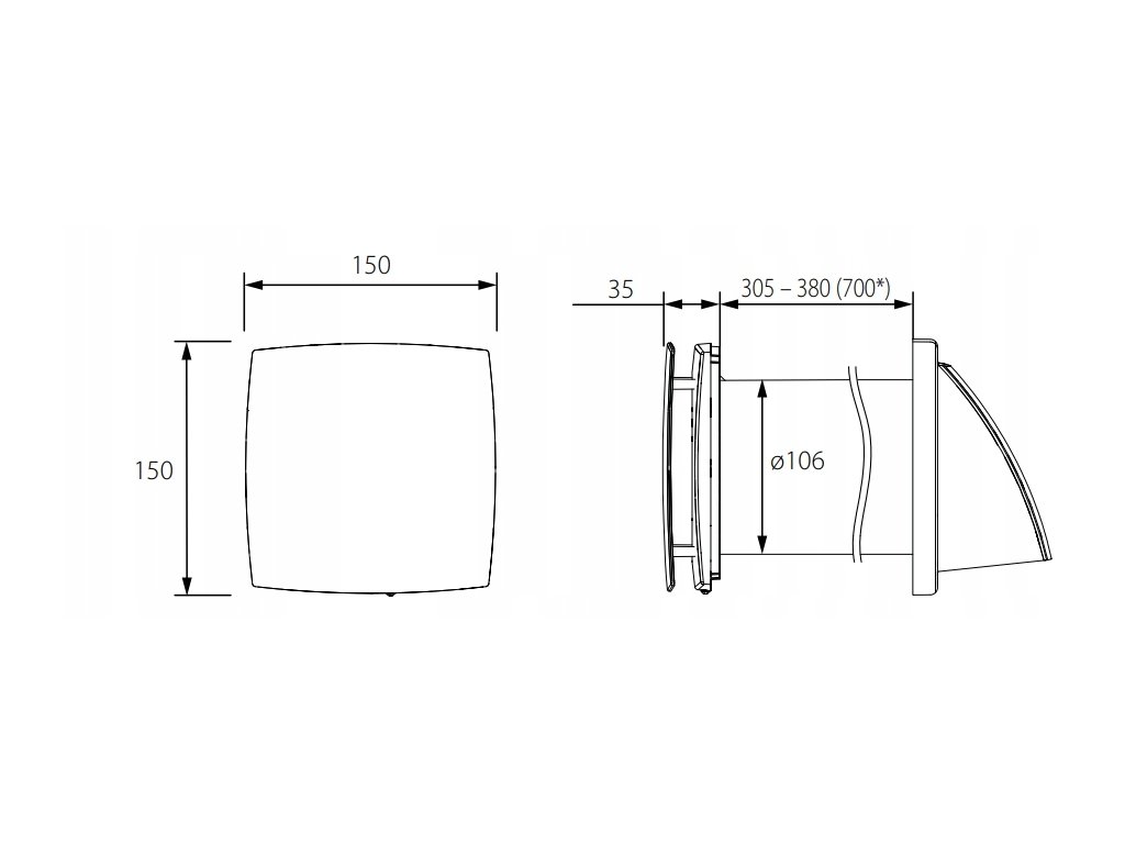
Priemer potrubia: 100 mm (dostupná aj verzia 125 mm)
-
Hrúbka steny: Štandardne 305 – 380 mm (možné predĺženie až do 1000 mm)
-
Typ filtra: Obsahuje filter triedy G3, ktorý chráni keramický výmenník a interiér pred prachom a hmyzom.
-
Materiál: Kvalitný ABS plast odolný voči UV žiareniu a keramický akumulátor.
📝 Údržba a filtre
-
Čistenie filtrov: Odporúča sa pravidelná kontrola a čistenie (vysávanie alebo prepláchnutie vodou) prachových filtrov, aby sa zachoval prietok vzduchu.
-
Výmena filtrov: Pri silnom znečistení je možné dokúpiť náhradné prachové filtre (kompatibilné so sériou TwinFresh).
-
Výmenník: Keramický rekuperátor stačí raz ročne vysať od jemného prachu.
Tip pre optimálnu klímu: Pre dosiahnutie vyváženého vetrania v celom byte sa odporúča inštalovať jednotky v pároch, aby jedna vzduch privádzala a druhá odvádzala (v prípade pokročilejších modelov s možnosťou synchronizácie).
Dodatočné parametre
| Kategória: | VENTIKA |
|---|---|
| Hmotnosť: | 2.8 kg |
| Prietok vzduchu: | 15 – 40 m³/h |
| Účinnosť rekuperácie: | až 90 % |
| Hlučnosť: | od 20 dB(A) |
| Napájanie: | 230 V / 50 Hz |
| Materiál výmenníka: | keramika s vysokou tepelnou zotrvačnosťou |
| Priemer potrubia: | 100 mm |
| Použitie: | obytné a komerčné priestory |
Buďte prvý, kto napíše príspevok k tejto položke.

Ventika: Spoľahlivé vetranie, ktoré nezruinuje peňaženku
Potrebujete vyriešiť odvetranie kúpeľne, WC alebo kuchyne, ale hľadáte cenovo rozumné riešenie? Značka Ventika prináša ventilátory a vzduchotechnické komponenty, ktoré vsádzajú na jednoduchosť a funkčnosť. Žiadne zbytočnosti, len overená technika, ktorá robí to, čo má – vetrá.
V ponuke Ventika nájdete všetko od základných kúpeľňových ventilátorov cez potrubné ventilátory až po širokú škálu mriežok a plastového potrubia. Produkty sú navrhnuté pre jednoduchú inštaláciu, ktorú zvládne aj domáci majster. S Ventikou vyriešite vlhkosť v byte rýchlo a efektívne.
